Listed by Elias Kirallah of CENTURY 21 J.W.MORTON R.E. (352-726-6668)
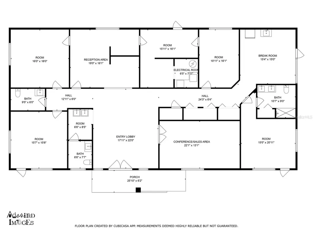
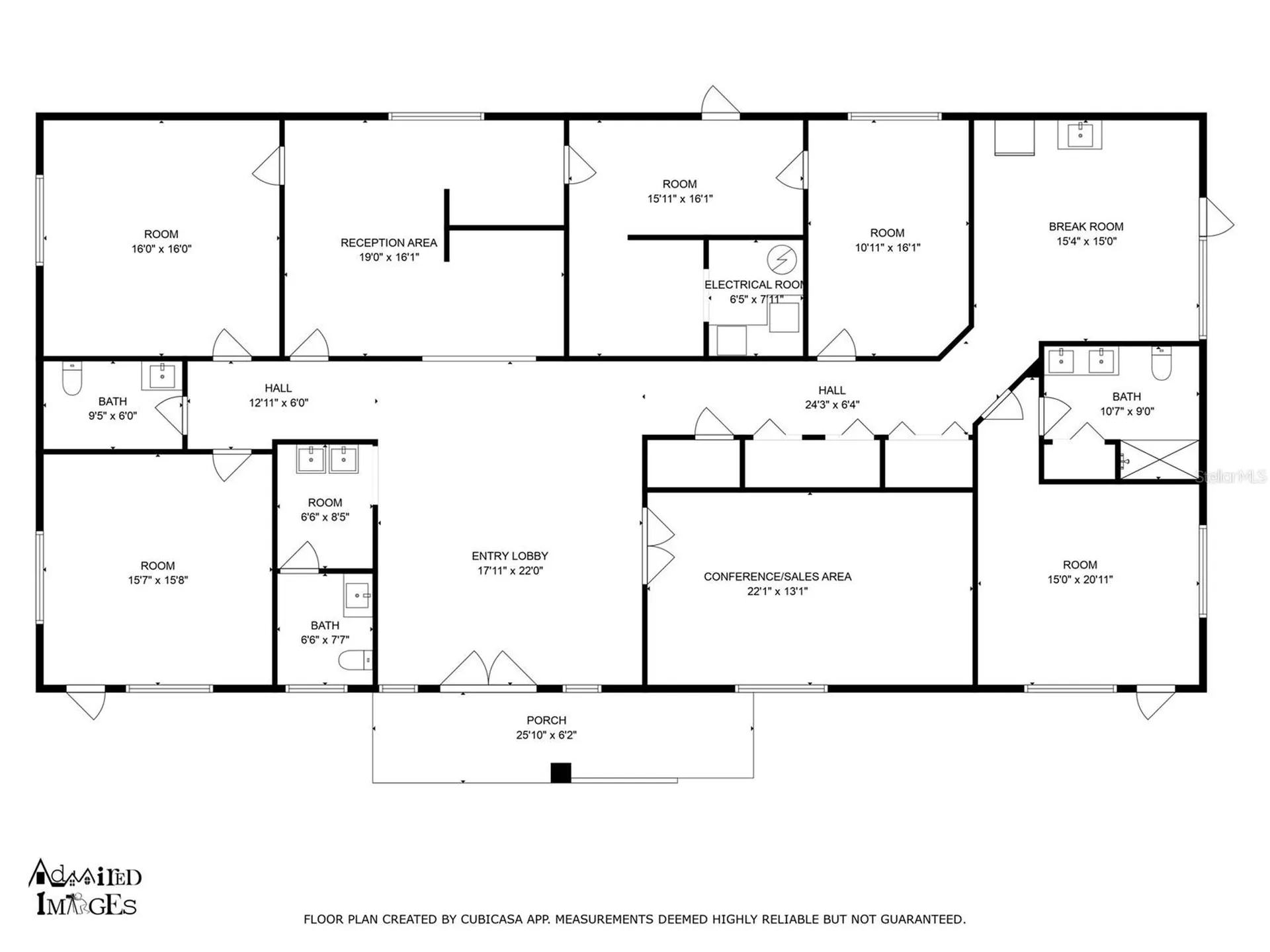
Located in the heart of Citrus County, just 55 minutes from Tampa International Airport, this fully renovated 3,200 SF executive office building offers a prime investment opportunity. Situated directly on State Road 44 (29,500 AADT) on 0.71 acres of General Commercial-zoned land, the property features four private offices, a large conference room, reception, mail/copy room, oversized lobby, breakroom, and three ADA-compliant restrooms. With 37 parking spaces, full city utilities, and high-end finishes throughout, the space is ideal for professional or medical use. The property is leased to a national newspaper conglomerate under a corporate-guaranteed NNN lease with 2.5% annual rent increases and two 3-year renewal options, offering strong passive income. Citrus County's office sector remains one of the strongest performers in Central Florida, with average cap rates near 6%. Positioned just 2.2 miles from Historic Downtown Inverness and near key civic and healthcare centers, the site enjoys regional access to major communities like Lecanto, Crystal River, and Homosassa. Citrus County is one of Florida's fastest-growing areas, with projections exceeding 350,000 residents by 2030 and inclusion in the Tampa-St. Petersburg-Clearwater MSA, the 18th largest in the U.S. This property offers rare value in a growing market-ideal for investors seeking stable returns or end-users looking to secure a premium, high-visibility location. Disclaimer: All information provided herein is for marketing purposes only and is not guaranteed for accuracy. Prospective buyers or tenants are encouraged to conduct their own independent due diligence. The seller, broker, and associated parties make no representations or warranties, expressed or implied, as to the accuracy or completeness of this information. All dimensions, zoning details, financial data, and other property-related facts should be independently verified. Please consult with appropriate licensed professionals before making any investment or purchasing decisions.

Listing Tools

Property Details of 2519 W Highway 44

Property Details

Exterior Features

Utilities and Appliances

Community

Map Location

Listings courtesy of StellarMLS as distributed by MLS GRID. Based on information submitted to the MLS GRID as of March 14, 2026 8:03 AM EDT. All data is obtained from various sources and may not have been verified by broker or MLS GRID. Supplied Open House Information is subject to change without notice. All information should be independently reviewed and verified for accuracy. Properties may or may not be listed by the office/agent presenting the information. IDX information is provided exclusively for consumers’ personal noncommercial use and may not be used for any purpose other than to identify prospective properties consumers may be interested in purchasing. The data is deemed reliable but is not guaranteed by MLS GRID. The use of the MLS GRID Data may be subject to an end user license agreement.

Hi there! How can we help you?

Contact us using the form below or give us a call.

Send Us A Message:

I agree to receive marketing and customer service calls and text messages from TMG TERRA MIA GLOBAL REALTY. To opt out, you can reply 'stop' at any time or click the unsubscribe link in the emails. Consent is not a condition of purchase. Msg/data rates may apply. Msg frequency varies. Privacy Policy.

Do not fill in this field:

This site is protected by reCAPTCHA and the Google Privacy Policy and Terms of Service apply.

Hi there! How can we help you?

Contact us using the form below or give us a call.

Send Us A Message:

Do not fill in this field:

This site is protected by reCAPTCHA and the Google Privacy Policy and Terms of Service apply.

Hi there! How can we help you?

Contact us using the form below or give us a call.

Send Us A Message:

Do not fill in this field:

This site is protected by reCAPTCHA and the Google Privacy Policy and Terms of Service apply.

Do not fill in this field:

This site is protected by reCAPTCHA and the Google Privacy Policy and Terms of Service apply.

Do not fill in this field:

This site is protected by reCAPTCHA and the Google Privacy Policy and Terms of Service apply.

Do not fill in this field:

This site is protected by reCAPTCHA and the Google Privacy Policy and Terms of Service apply.

$

Do not fill in this field:

This site is protected by reCAPTCHA and the Google Privacy Policy and Terms of Service apply.