Listed by Amy Calandrino of BEYOND COMMERCIAL (407-641-2221)
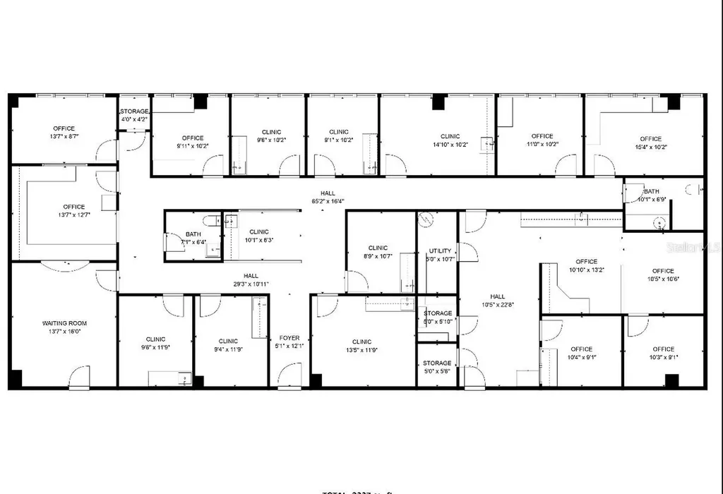
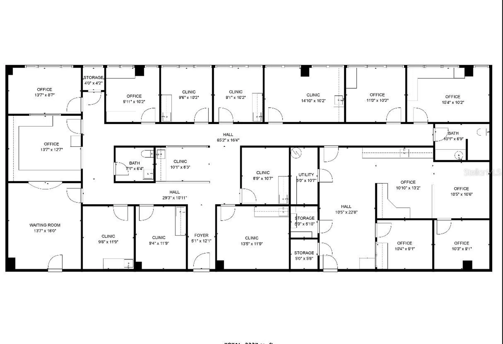
Property Description 3,467 SF | Fully Built-Out Medical Office | Adjacent to AdventHealth This 3,467 SF medical office is located within the AdventHealth Altamonte Springs campus, offering a prime opportunity for healthcare professionals seeking a high-visibility, convenient location. The suite is fully built-out and move-in ready, featuring a versatile layout with specialized medical infrastructure suitable for a variety of healthcare practices. The floorplan includes nine private offices and nine clinic/exam rooms, along with procedure spaces, nurse stations, restrooms, and a welcoming waiting area. Ample storage and administrative space support efficient daily operations, while the design ensures smooth patient flow and a professional environment for both staff and visitors. Directly adjacent to AdventHealth, this medical office provides seamless access to the hospital's state-of-the-art facilities, making it ideal for medical practitioners who need to collaborate closely with hospital staff or wish to benefit from increased patient referrals. The office is filled with natural light, creating a professional and welcoming atmosphere. With its prime campus location, high-quality finishes, and the convenience of a move-in-ready design, this property is an excellent choice for healthcare professionals looking to establish or expand their practice in one of Altamonte Springs' most desirable medical hubs. Contact us today to schedule a tour and learn more about this exceptional medical office space! Location Description Located on the AdventHealth Altamonte Springs campus, this office offers unmatched convenience for medical professionals. Situated near major highways such as SR 436 and I-4, the office provides easy access to the broader Orlando area, while being nestled within a thriving medical and commercial district. The proximity to retail centers, dining, and other medical services enhances the location's appeal to both practitioners and patients alike. Highlights - 3,467 SF of Fully Built-Out Medical Office Space - Flexible layout suitable for various medical uses, ready for immediate occupancy - Located Adjacent to AdventHealth - Seamless integration with the hospital's facilities and staff for enhanced patient care and collaboration - Multiple Exam Rooms & Procedure Rooms - Fully equipped spaces for examinations and minor procedures - Nurse's Station, Doctor's Office, and Waiting Area - Optimized design for efficient patient flow - Two Restrooms & Both Main and Rear Entrances - Convenient access for patients and staff - Natural Light Throughout - Large windows that create a bright, welcoming atmosphere - Move-In Ready - High-end finishes with medical-grade infrastructure throughout - Ample Parking & Valet Services - Excellent parking options for both staff and patients, including valet services at the entrance - Well-Maintained Property - Located within a well-maintained medical complex with a financially robust condo association

Listing Tools

Property Details of 661 E Altamonte Drive, Unit 231

Property Details

Exterior Features

Utilities and Appliances

Community

Map Location

Listings courtesy of StellarMLS as distributed by MLS GRID. Based on information submitted to the MLS GRID as of November 15, 2025 6:31 AM EST. All data is obtained from various sources and may not have been verified by broker or MLS GRID. Supplied Open House Information is subject to change without notice. All information should be independently reviewed and verified for accuracy. Properties may or may not be listed by the office/agent presenting the information. IDX information is provided exclusively for consumers’ personal noncommercial use and may not be used for any purpose other than to identify prospective properties consumers may be interested in purchasing. The data is deemed reliable but is not guaranteed by MLS GRID. The use of the MLS GRID Data may be subject to an end user license agreement.

Hi there! How can we help you?

Contact us using the form below or give us a call.

Send Us A Message:

I agree to receive marketing and customer service calls and text messages from TMG TERRA MIA GLOBAL REALTY. To opt out, you can reply 'stop' at any time or click the unsubscribe link in the emails. Consent is not a condition of purchase. Msg/data rates may apply. Msg frequency varies. Privacy Policy.

Do not fill in this field:

This site is protected by reCAPTCHA and the Google Privacy Policy and Terms of Service apply.

Hi there! How can we help you?

Contact us using the form below or give us a call.

Send Us A Message:

Do not fill in this field:

This site is protected by reCAPTCHA and the Google Privacy Policy and Terms of Service apply.

Hi there! How can we help you?

Contact us using the form below or give us a call.

Send Us A Message:

Do not fill in this field:

This site is protected by reCAPTCHA and the Google Privacy Policy and Terms of Service apply.

Do not fill in this field:

This site is protected by reCAPTCHA and the Google Privacy Policy and Terms of Service apply.

Do not fill in this field:

This site is protected by reCAPTCHA and the Google Privacy Policy and Terms of Service apply.

Do not fill in this field:

This site is protected by reCAPTCHA and the Google Privacy Policy and Terms of Service apply.

$

Do not fill in this field:

This site is protected by reCAPTCHA and the Google Privacy Policy and Terms of Service apply.