Listed by Bobby Luthra of PROPERTY INVESTMENT BROKERS (407-649-9888)
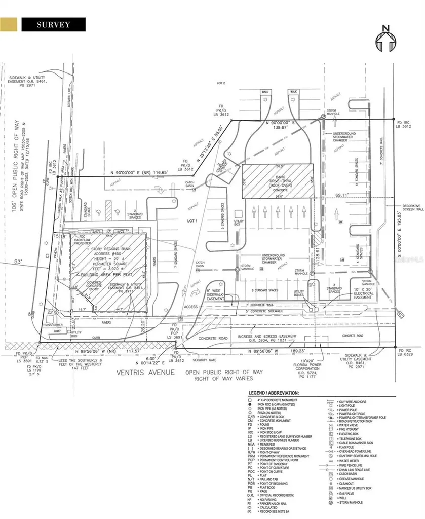
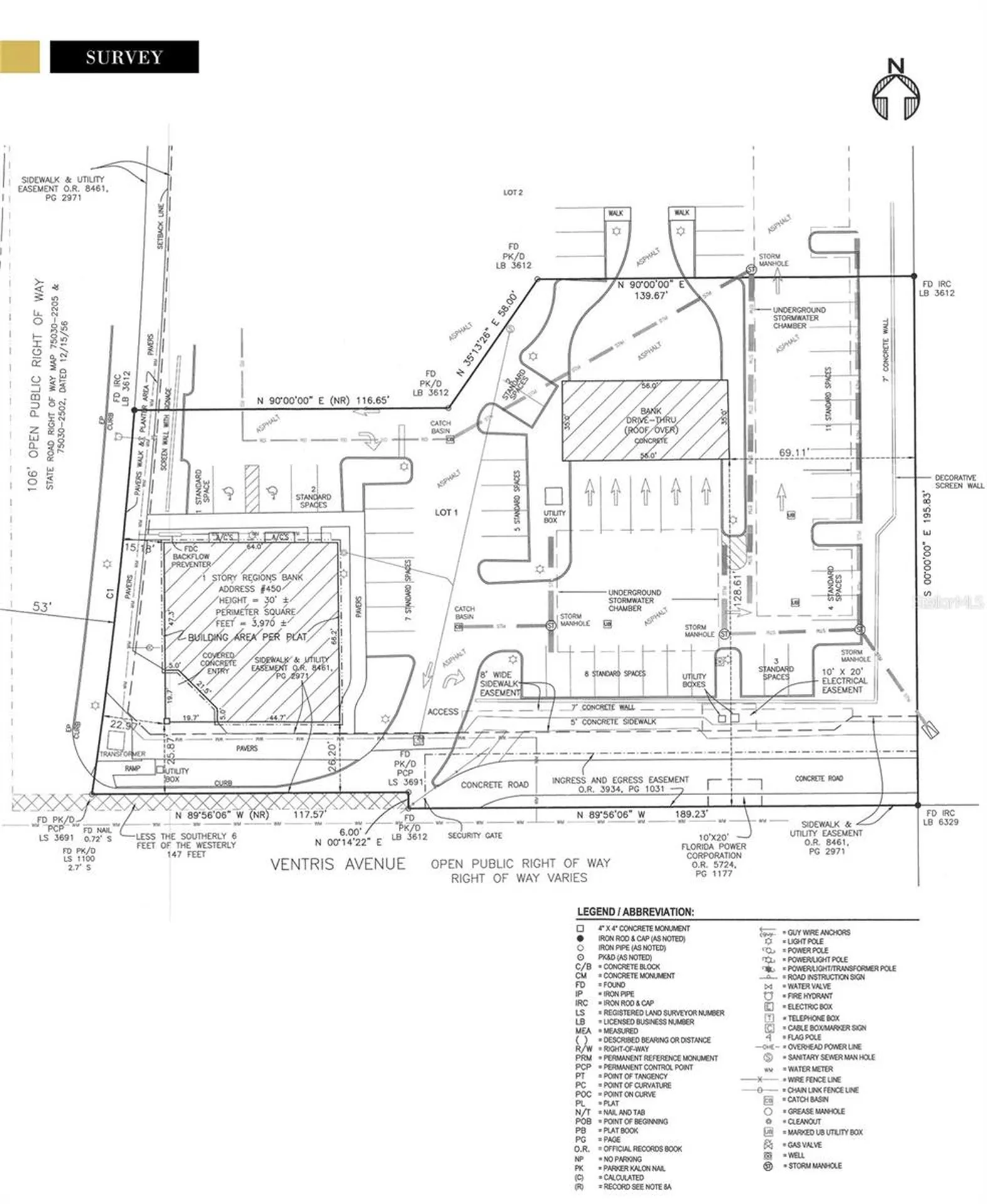
For Sale! (Also Available For Lease) Freestanding Building located in Maitland, Florida. Maitland is a suburban city in Orange County, and part of the Greater Orlando area. It is approximately eight miles north of downtown Orlando. Affluent suburban community and strong demographics. There are several condominium and apartment complexes within a half-mile of the subject property including the Q at Maitland, The Village at Lake Lily (250+ units) and Lake Maitland Terrace Condos (181 units). 3 Bank Teller Lines. Parking: 47 Spaces. Dense Retail and Residential Corridor / Surrounding Retailers. Include: Publix, Starbucks, McDonald's, Walgreens, Chase, PNC, Bank of America. Easy access to 17/92, Maitland Blvd, I-4 and close to Maitland SunRail Station. Excellent visible location | S Orlando Ave with 47,000+ AADT

Listing Tools

Property Details of 450 S Orlando Avenue

Property Details

Exterior Features

Utilities and Appliances

Community

Map Location

Listings courtesy of StellarMLS as distributed by MLS GRID. Based on information submitted to the MLS GRID as of November 15, 2025 4:30 AM EST. All data is obtained from various sources and may not have been verified by broker or MLS GRID. Supplied Open House Information is subject to change without notice. All information should be independently reviewed and verified for accuracy. Properties may or may not be listed by the office/agent presenting the information. IDX information is provided exclusively for consumers’ personal noncommercial use and may not be used for any purpose other than to identify prospective properties consumers may be interested in purchasing. The data is deemed reliable but is not guaranteed by MLS GRID. The use of the MLS GRID Data may be subject to an end user license agreement.

Hi there! How can we help you?

Contact us using the form below or give us a call.

Send Us A Message:

I agree to receive marketing and customer service calls and text messages from TMG TERRA MIA GLOBAL REALTY. To opt out, you can reply 'stop' at any time or click the unsubscribe link in the emails. Consent is not a condition of purchase. Msg/data rates may apply. Msg frequency varies. Privacy Policy.

Do not fill in this field:

This site is protected by reCAPTCHA and the Google Privacy Policy and Terms of Service apply.

Hi there! How can we help you?

Contact us using the form below or give us a call.

Send Us A Message:

Do not fill in this field:

This site is protected by reCAPTCHA and the Google Privacy Policy and Terms of Service apply.

Hi there! How can we help you?

Contact us using the form below or give us a call.

Send Us A Message:

Do not fill in this field:

This site is protected by reCAPTCHA and the Google Privacy Policy and Terms of Service apply.

Do not fill in this field:

This site is protected by reCAPTCHA and the Google Privacy Policy and Terms of Service apply.

Do not fill in this field:

This site is protected by reCAPTCHA and the Google Privacy Policy and Terms of Service apply.

Do not fill in this field:

This site is protected by reCAPTCHA and the Google Privacy Policy and Terms of Service apply.

$

Do not fill in this field:

This site is protected by reCAPTCHA and the Google Privacy Policy and Terms of Service apply.