Listed by Wyatt Marks of THE MARKS GROUP REALTY,LLC (407-256-3018)
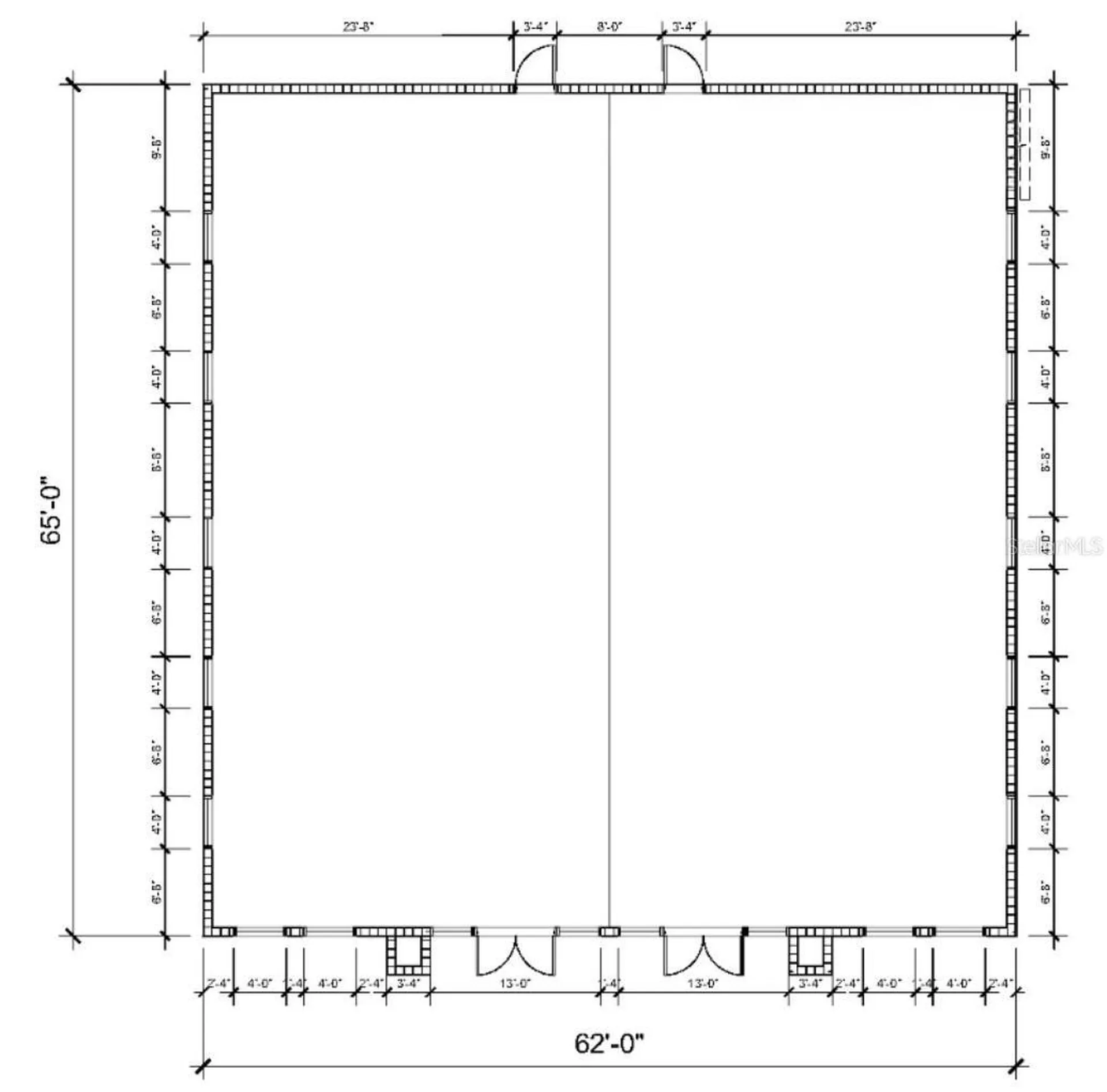
Under Construction. Building #10 is available for purchase at Lake Carter Exchange, a distinguished mixed-use development in Apopka's East Shore at the intersection of Ocoee-Apopka Road and W Keene Road. This dark gray shell building is ideal for medical or professional offices, with potential for retail use based on buyer needs. The shell delivery offers full flexibility for custom interior design with two front entrances supporting up to two unique suites. The development is strategically located less than one mile from Advent Health's seven-story, 120-bed hospital and opposite a new Publix Supermarket development. Situated in the vibrant East Shore trade area, which includes 5,000 planned residences and an average household income above $100k, this Class A property is perfectly positioned for businesses targeting growth in Central Florida's second-fastest-growing city. Contact us for pricing details/incentives and to schedule a tour of this exceptional commercial opportunity.

Listing Tools

Property Details of 2745 Ocoee Apopka Road, Unit 10

Property Details

Exterior Features

Utilities and Appliances

Map Location

Listings courtesy of StellarMLS as distributed by MLS GRID. Based on information submitted to the MLS GRID as of December 6, 2025 2:34 PM EST. All data is obtained from various sources and may not have been verified by broker or MLS GRID. Supplied Open House Information is subject to change without notice. All information should be independently reviewed and verified for accuracy. Properties may or may not be listed by the office/agent presenting the information. IDX information is provided exclusively for consumers’ personal noncommercial use and may not be used for any purpose other than to identify prospective properties consumers may be interested in purchasing. The data is deemed reliable but is not guaranteed by MLS GRID. The use of the MLS GRID Data may be subject to an end user license agreement.

Hi there! How can we help you?

Contact us using the form below or give us a call.

Send Us A Message:

I agree to receive marketing and customer service calls and text messages from TMG TERRA MIA GLOBAL REALTY. To opt out, you can reply 'stop' at any time or click the unsubscribe link in the emails. Consent is not a condition of purchase. Msg/data rates may apply. Msg frequency varies. Privacy Policy.

Do not fill in this field:

This site is protected by reCAPTCHA and the Google Privacy Policy and Terms of Service apply.

Hi there! How can we help you?

Contact us using the form below or give us a call.

Send Us A Message:

Do not fill in this field:

This site is protected by reCAPTCHA and the Google Privacy Policy and Terms of Service apply.

Hi there! How can we help you?

Contact us using the form below or give us a call.

Send Us A Message:

Do not fill in this field:

This site is protected by reCAPTCHA and the Google Privacy Policy and Terms of Service apply.

Do not fill in this field:

This site is protected by reCAPTCHA and the Google Privacy Policy and Terms of Service apply.

Do not fill in this field:

This site is protected by reCAPTCHA and the Google Privacy Policy and Terms of Service apply.

Do not fill in this field:

This site is protected by reCAPTCHA and the Google Privacy Policy and Terms of Service apply.

$

Do not fill in this field:

This site is protected by reCAPTCHA and the Google Privacy Policy and Terms of Service apply.