Listed by Melissa Connell of SPARROW KEY REALTY INC (863-409-9961)
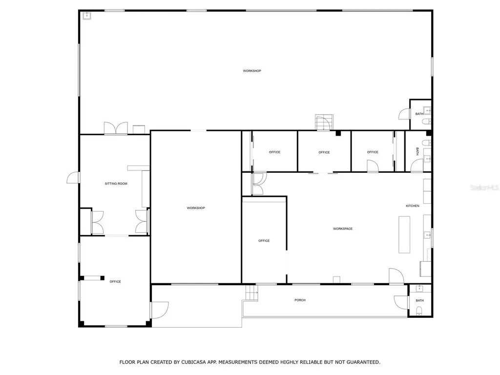
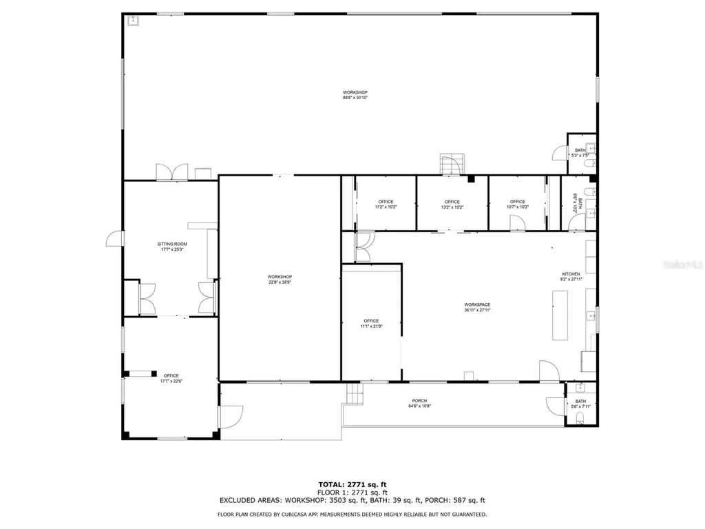
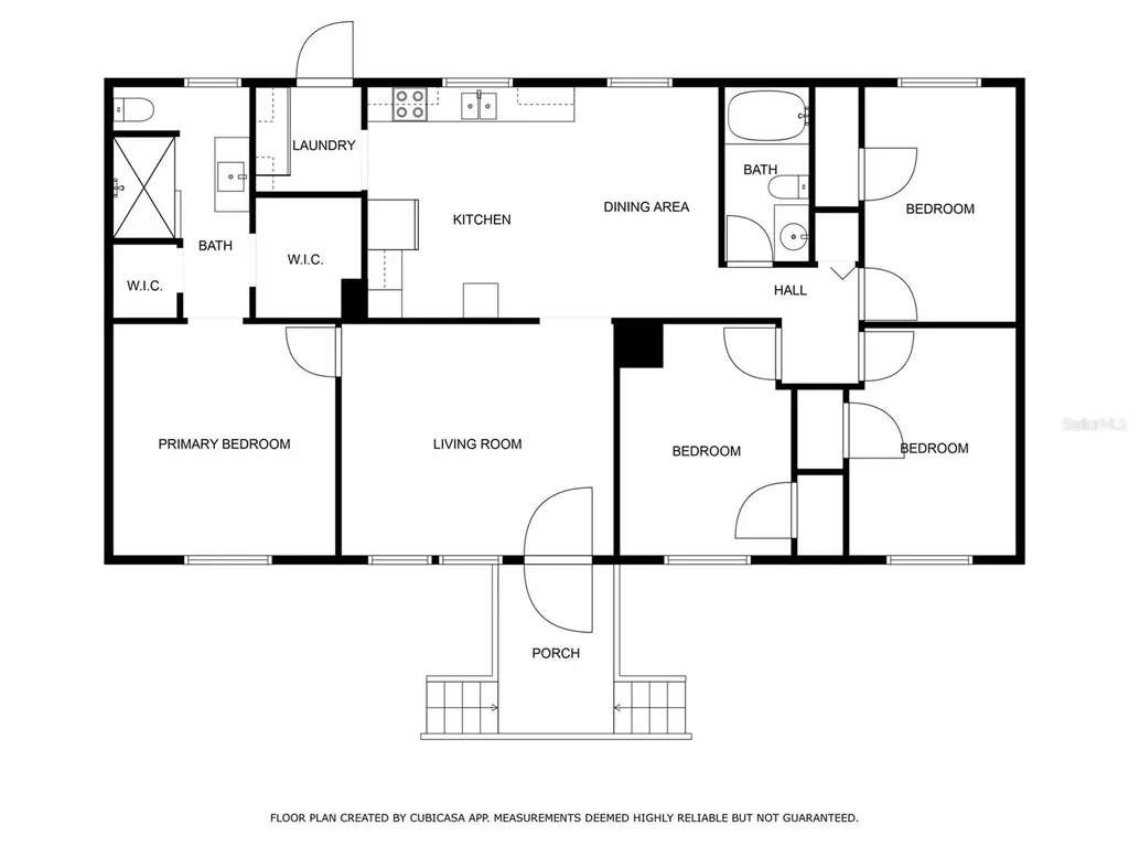
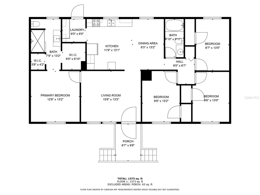
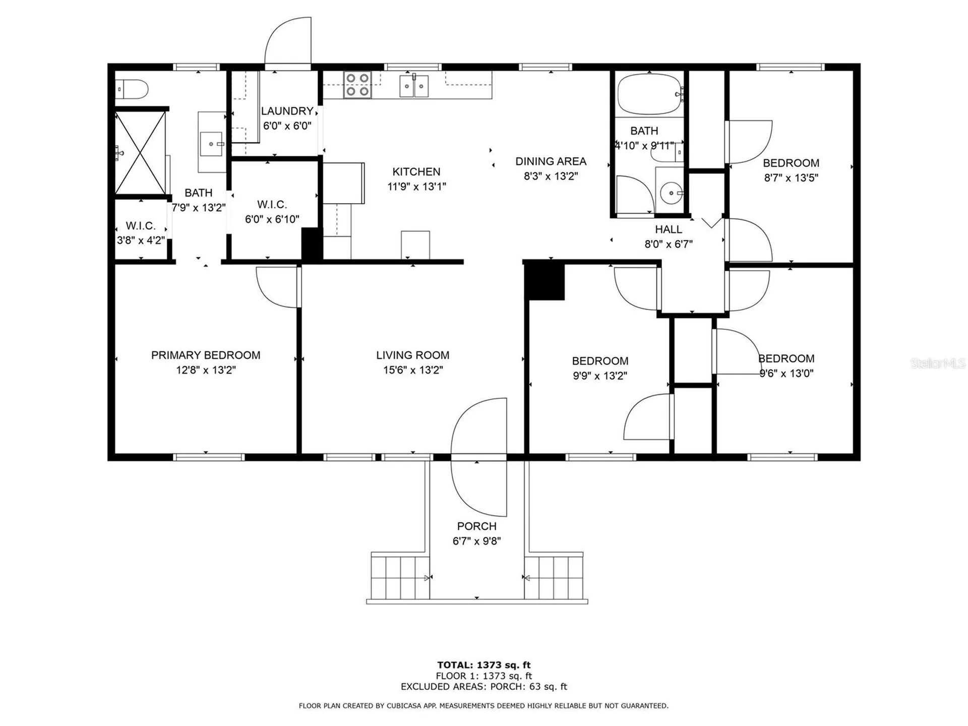
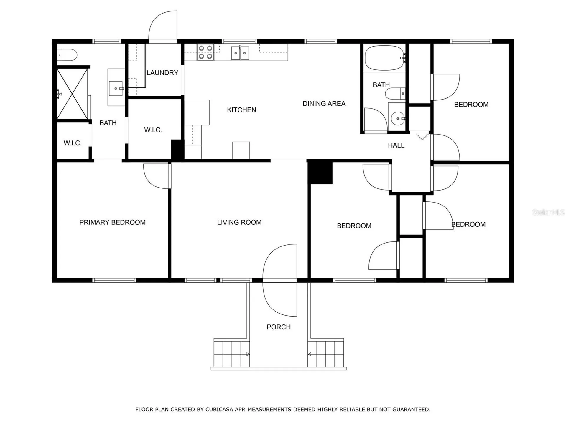
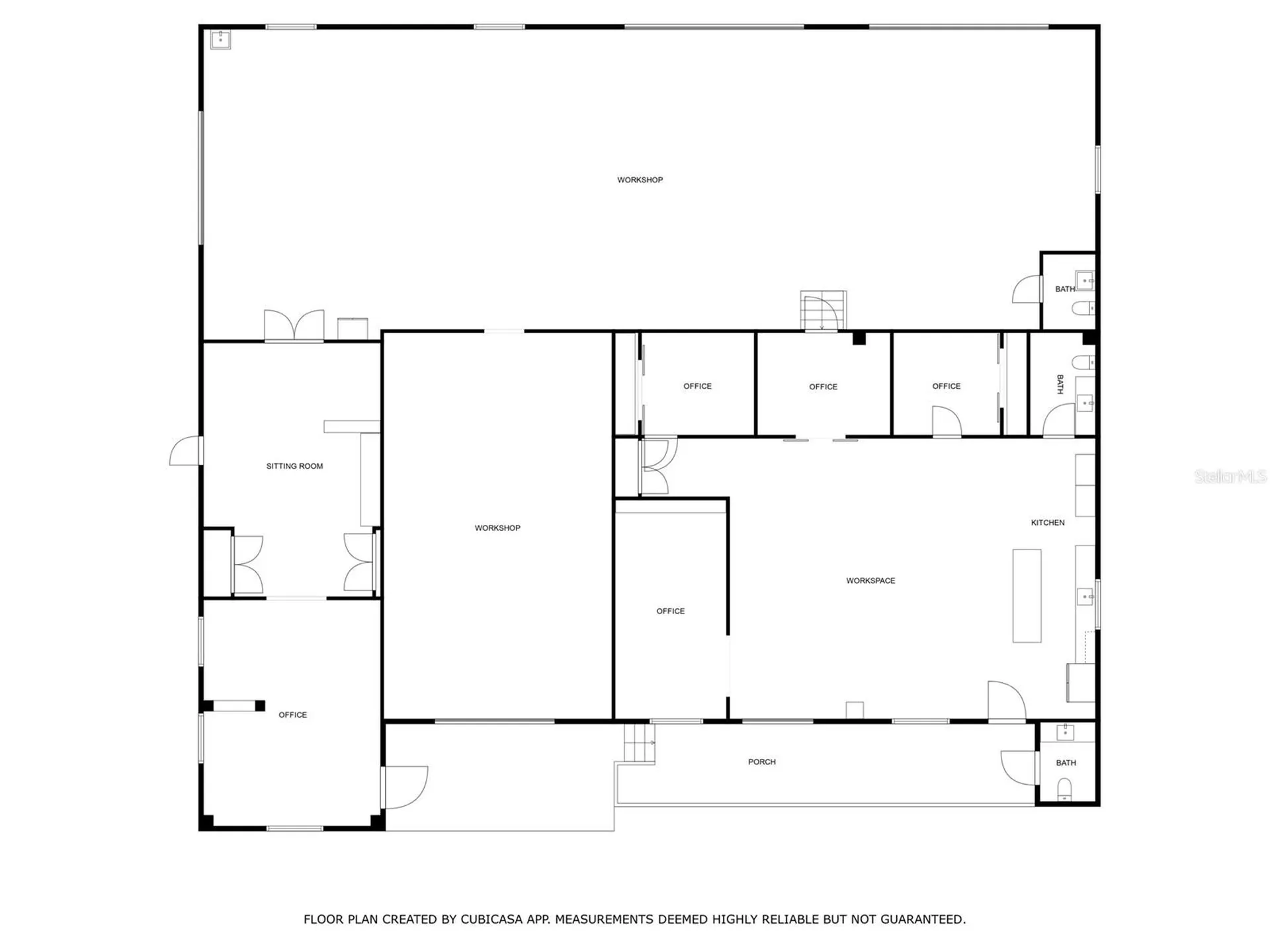
This established warehouse/office is conveniently located near main travel ways but tucked away from the congestion of town. The property has been very well maintained and has undergone updates and upgrades (2017-2024). Sale will convey two parcels with two structures, the main warehouse/office spacing and an additional 4/2 manufactured structure that is utilized as additional office and meeting room space. The property allows for ample parking for both standard vehicles and equipment. There are multiple office spaces, an open-air center portion of the office space that has a multitude of usage potential such as showroom, meeting area, or office cubicle spacing. There is a front dock with a rail gate for loading and unloading if needed. There is a pull through bay that leads to the main warehouse. The main warehouse space includes a shop bathroom and 3 roll up bay doors (one is electric and the other two are chain pull). The exterior of the warehouse has a lean to portion for material storage etc. The rear building has front and rear decks, multiple offices, 2 full bathrooms, a full kitchen, and full laundry area. There are two septic tanks and two wells on property with two electric service poles and services. This unique property has an abundance of potential for businesses large and small.

Listing Tools

Property Details of 705 Jerry Smith Road

Property Details

Exterior Features

Utilities and Appliances

Community

Map Location

Listings courtesy of StellarMLS as distributed by MLS GRID. Based on information submitted to the MLS GRID as of November 9, 2025 2:36 PM EST. All data is obtained from various sources and may not have been verified by broker or MLS GRID. Supplied Open House Information is subject to change without notice. All information should be independently reviewed and verified for accuracy. Properties may or may not be listed by the office/agent presenting the information. IDX information is provided exclusively for consumers’ personal noncommercial use and may not be used for any purpose other than to identify prospective properties consumers may be interested in purchasing. The data is deemed reliable but is not guaranteed by MLS GRID. The use of the MLS GRID Data may be subject to an end user license agreement.

Hi there! How can we help you?

Contact us using the form below or give us a call.

Send Us A Message:

I agree to receive marketing and customer service calls and text messages from TMG TERRA MIA GLOBAL REALTY. To opt out, you can reply 'stop' at any time or click the unsubscribe link in the emails. Consent is not a condition of purchase. Msg/data rates may apply. Msg frequency varies. Privacy Policy.

Do not fill in this field:

This site is protected by reCAPTCHA and the Google Privacy Policy and Terms of Service apply.

Hi there! How can we help you?

Contact us using the form below or give us a call.

Send Us A Message:

Do not fill in this field:

This site is protected by reCAPTCHA and the Google Privacy Policy and Terms of Service apply.

Hi there! How can we help you?

Contact us using the form below or give us a call.

Send Us A Message:

Do not fill in this field:

This site is protected by reCAPTCHA and the Google Privacy Policy and Terms of Service apply.

Do not fill in this field:

This site is protected by reCAPTCHA and the Google Privacy Policy and Terms of Service apply.

Do not fill in this field:

This site is protected by reCAPTCHA and the Google Privacy Policy and Terms of Service apply.

Do not fill in this field:

This site is protected by reCAPTCHA and the Google Privacy Policy and Terms of Service apply.

$

Do not fill in this field:

This site is protected by reCAPTCHA and the Google Privacy Policy and Terms of Service apply.