Listed by Leslie Brown PA of KW COASTAL LIVING (murraycoleman@kw.com)
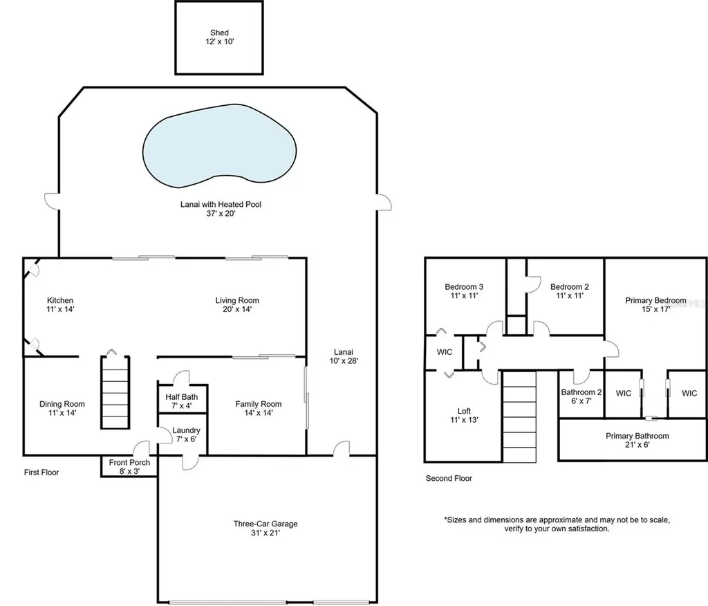
Dive into this beautifully designed two-story home where modern style meets everyday comfort, featuring four spacious bedrooms and a HEATED POOL perfect for year-round enjoyment. Thoughtfully laid out for both entertaining and relaxing, this home boasts luxury vinyl plank flooring throughout, contemporary finishes, and flexible rooms ideal for family, guests, or your dream floor plan.***Step inside and appreciate the thoughtful layout and modern upgrades throughout, including the sliding barn doors, custom blinds, plantation shutters, open floor plan, and luxury vinyl flooring spanning the entire home. The updated kitchen is ideal for everyday living and entertaining, featuring GRANITE countertops, a center island, a GAS STOVE, and a convenient serving window to the pool and screened lanai for seamless indoor-outdoor gatherings. Serve your guests in the formal dining room or enjoy a more casual meal at the dinette overlooking the pool. Impact-rated hurricane windows and doors provide safety and energy efficiency, while SMART-HOME features, including WiFi-enabled Alexa outlets, lighting, and appliances, deliver modern convenience throughout. ~~~The oversized primary suite features DUAL WALK-IN closets with abundant storage, while natural light enhances the airy feel and showcases the home's modern finishes. The en-suite bathroom is a private retreat, featuring a relaxing garden tub, upgraded tile finishes, and a dual-sink vanity for added convenience. Beyond the primary suite, the additional bedrooms continue the home's thoughtful design, offering versatile spaces that can adapt to your lifestyle. The fourth bedroom provides flexibility to be used as a loft, home office, playroom, or creative space tailored to your needs. ***Located in the desirable South Gulf Cove community in Port Charlotte, Florida, residents enjoy a laid-back coastal lifestyle with access to community parks, a boat ramp, and waterfront features that make this neighborhood especially appealing to outdoor enthusiasts. Close proximity to shopping, dining, golf courses, fishing, and Gulf beaches ensures you're never far from the best Southwest Florida has to offer, while still enjoying the tranquility of a well-established residential community. Don't miss your chance to make it yours-schedule your private showing today and start living the South Gulf Cove lifestyle.

Listing Tools

Property Details of 9285 Galaxie Circle

Property Details

Interior Features

Exterior Features

Utilities and Appliances

Community

Other Details

Map Location

Listings courtesy of StellarMLS as distributed by MLS GRID. Based on information submitted to the MLS GRID as of February 18, 2026 11:04 PM EST. All data is obtained from various sources and may not have been verified by broker or MLS GRID. Supplied Open House Information is subject to change without notice. All information should be independently reviewed and verified for accuracy. Properties may or may not be listed by the office/agent presenting the information. IDX information is provided exclusively for consumers’ personal noncommercial use and may not be used for any purpose other than to identify prospective properties consumers may be interested in purchasing. The data is deemed reliable but is not guaranteed by MLS GRID. The use of the MLS GRID Data may be subject to an end user license agreement.

Hi there! How can we help you?

Contact us using the form below or give us a call.

Send Us A Message:

I agree to receive marketing and customer service calls and text messages from TMG TERRA MIA GLOBAL REALTY. To opt out, you can reply 'stop' at any time or click the unsubscribe link in the emails. Consent is not a condition of purchase. Msg/data rates may apply. Msg frequency varies. Privacy Policy.

Do not fill in this field:

This site is protected by reCAPTCHA and the Google Privacy Policy and Terms of Service apply.

Hi there! How can we help you?

Contact us using the form below or give us a call.

Send Us A Message:

Do not fill in this field:

This site is protected by reCAPTCHA and the Google Privacy Policy and Terms of Service apply.

Hi there! How can we help you?

Contact us using the form below or give us a call.

Send Us A Message:

Do not fill in this field:

This site is protected by reCAPTCHA and the Google Privacy Policy and Terms of Service apply.

Do not fill in this field:

This site is protected by reCAPTCHA and the Google Privacy Policy and Terms of Service apply.

Do not fill in this field:

This site is protected by reCAPTCHA and the Google Privacy Policy and Terms of Service apply.

Do not fill in this field:

This site is protected by reCAPTCHA and the Google Privacy Policy and Terms of Service apply.

$

Do not fill in this field:

This site is protected by reCAPTCHA and the Google Privacy Policy and Terms of Service apply.