Listed by Lore Mooren of PARADISE EXCLUSIVE INC (941-698-0303)
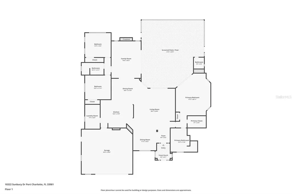
Enjoy stunning water views from nearly every angle of this beautiful home, where the tranquil canals frame each day with peaceful reflections of water and sky. Set on a DOUBLE LOT, this custom-built, meticulously maintained residence offers the perfect blend of space, privacy, and relaxed boating lifestyle. With 100 feet of CONCRETE SEAWALL and a dock, you'll have direct access to open water with NO BRIDGES, making this a true haven for boating and outdoor enthusiasts. Step inside to a welcoming formal dining and sitting area, filled with natural light from a large picture window and pocketing sliding glass doors. From here, enjoy views that stretch straight down the canal, as well as glimpses of another peaceful waterway across the street, creating an open, airy feel and a seamless connection to the outdoors. The spacious kitchen offers abundant cabinetry, generous counter space, and a functional layout that makes cooking and entertaining effortless. Overlooking the canal and opening to the main living areas, it's the warm heart of the home where family and friends naturally gather. The family room features sliding glass doors leading to the lanai, filling the space with natural light. A fireplace adds a cozy touch, perfect for relaxing or entertaining on cool evenings. The split floor plan ensures privacy for everyone, with guest bedrooms and a full bath on one side, and the primary suite tucked away on the other. The primary suite provides beautiful canal views, direct access to the pool, and a serene, light-filled atmosphere. The ensuite bathroom features a walk-in shower, dual vanities, and a private water closet. Step outside to a park-like landscape filled with fruit trees, avocado, mango, banana, dwarf banana, and dragon fruit-plus a small garden with tomatoes and pineapples. A durable dock and irrigation system covering BOTH lots keeping the property lush and pristine. Major updates bring comfort and peace of mind, including a 2023 METAL ROOF, gutters, and soffits, along with fresh interior paint (2023), Refrigerator (2025), Stove (2025), and Dishwasher (2025), that give the home a crisp, modern feel. The pool and spa area has been thoughtfully refreshed with a NEW CAGE and CLEARVIEW SCREEN (2024), a RESURFACED POOL (2016), a POOL HEATER (2020), and a POOL PUMP (2023)-perfect for year-round enjoyment. Additional updates include a 2025 AC system, a 2022 WATER HEATER, and tile flooring throughout. Located just 10 miles from Boca Grande's pristine beaches and close to top golf courses, great restaurants, shopping, and world-class fishing, this home offers the ideal blend of waterfront serenity and coastal convenience. The third lot is available under a separate contract.

Listing Tools

Property Details of 10322 Sunbury Drive

Property Details

Interior Features

Exterior Features

Utilities and Appliances

Community

Other Details

Map Location

Listings courtesy of StellarMLS as distributed by MLS GRID. Based on information submitted to the MLS GRID as of February 14, 2026 6:01 AM EST. All data is obtained from various sources and may not have been verified by broker or MLS GRID. Supplied Open House Information is subject to change without notice. All information should be independently reviewed and verified for accuracy. Properties may or may not be listed by the office/agent presenting the information. IDX information is provided exclusively for consumers’ personal noncommercial use and may not be used for any purpose other than to identify prospective properties consumers may be interested in purchasing. The data is deemed reliable but is not guaranteed by MLS GRID. The use of the MLS GRID Data may be subject to an end user license agreement.

Hi there! How can we help you?

Contact us using the form below or give us a call.

Send Us A Message:

I agree to receive marketing and customer service calls and text messages from TMG TERRA MIA GLOBAL REALTY. To opt out, you can reply 'stop' at any time or click the unsubscribe link in the emails. Consent is not a condition of purchase. Msg/data rates may apply. Msg frequency varies. Privacy Policy.

Do not fill in this field:

This site is protected by reCAPTCHA and the Google Privacy Policy and Terms of Service apply.

Hi there! How can we help you?

Contact us using the form below or give us a call.

Send Us A Message:

Do not fill in this field:

This site is protected by reCAPTCHA and the Google Privacy Policy and Terms of Service apply.

Hi there! How can we help you?

Contact us using the form below or give us a call.

Send Us A Message:

Do not fill in this field:

This site is protected by reCAPTCHA and the Google Privacy Policy and Terms of Service apply.

Do not fill in this field:

This site is protected by reCAPTCHA and the Google Privacy Policy and Terms of Service apply.

Do not fill in this field:

This site is protected by reCAPTCHA and the Google Privacy Policy and Terms of Service apply.

Do not fill in this field:

This site is protected by reCAPTCHA and the Google Privacy Policy and Terms of Service apply.

$

Do not fill in this field:

This site is protected by reCAPTCHA and the Google Privacy Policy and Terms of Service apply.