Listed by Luke Andreae of RE/MAX HARBOR REALTY (941-639-8500)
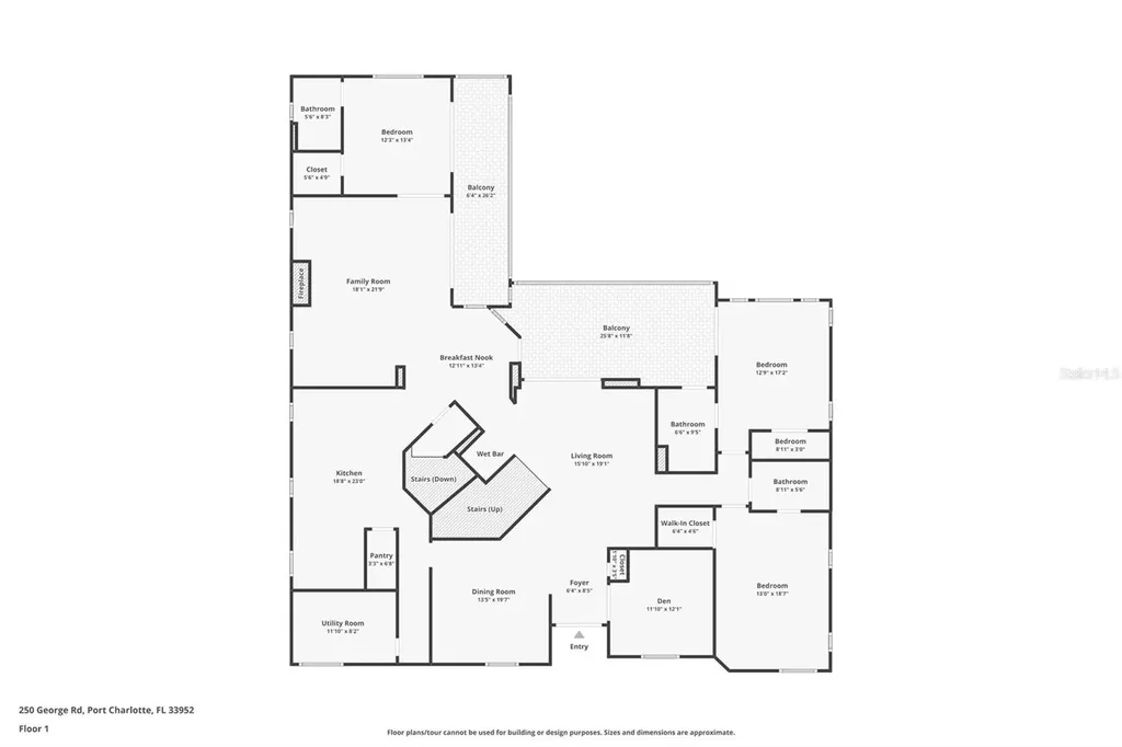
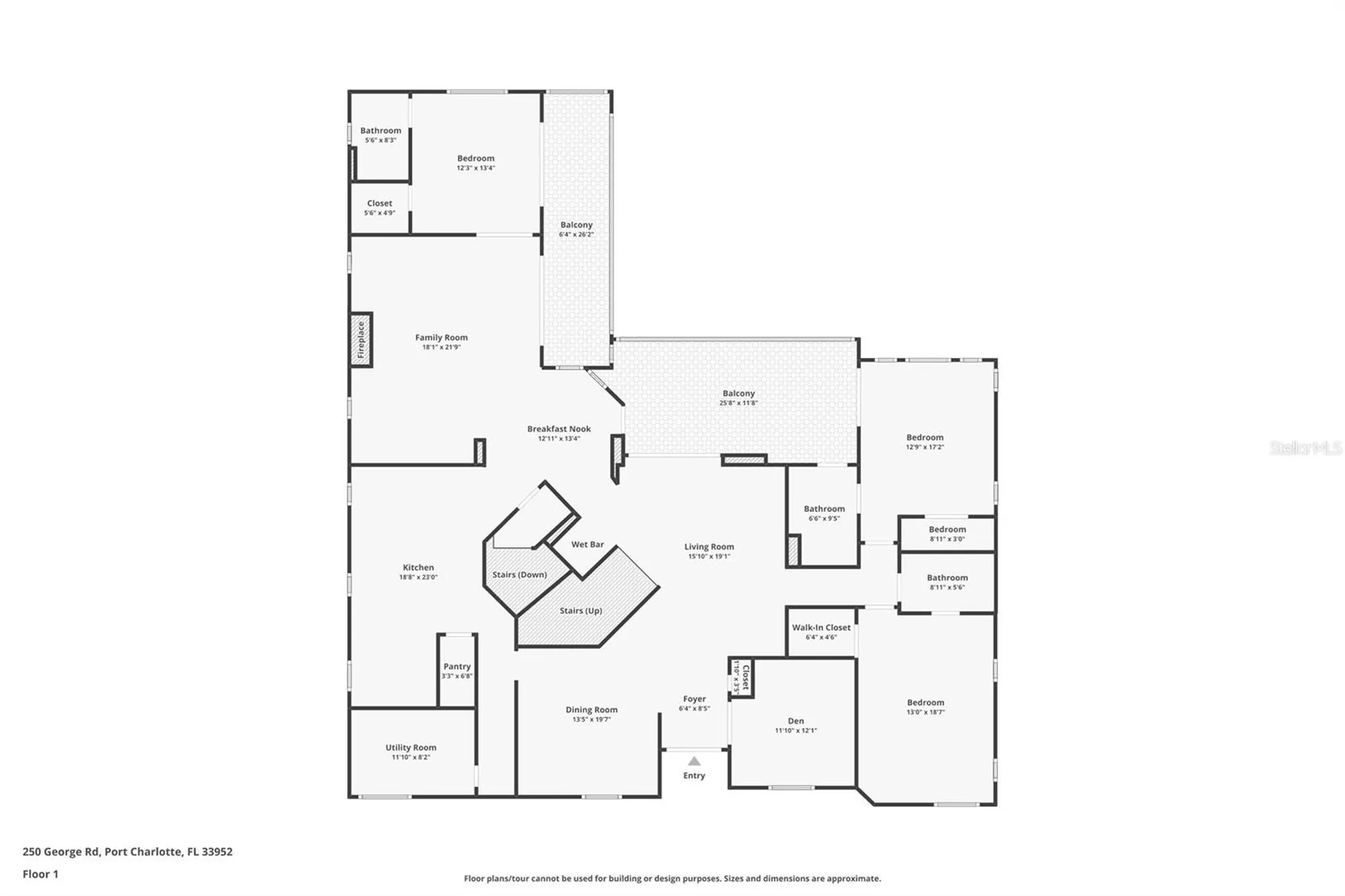
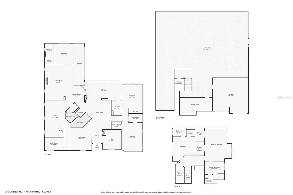
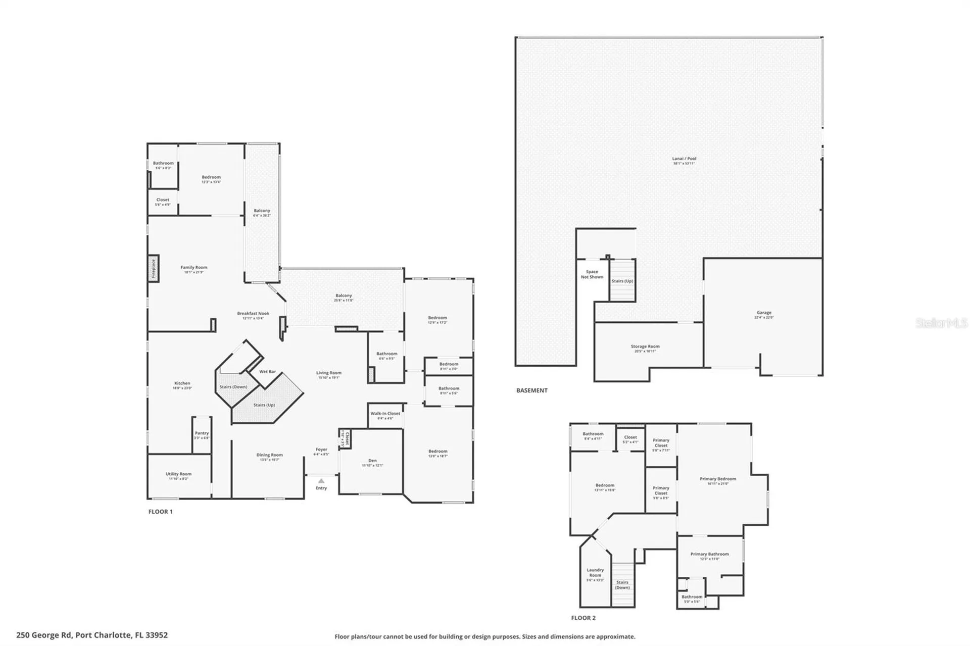
EXCEPTIONAL WATERFRONT HOME IN PORT CHARLOTTE W/NEARLY INSTANT ACCESS TO OPEN WATER! Looking for a spectacular waterfront residence w/***NEW METAL ROOF***, FIVE BEDROOMS (ALL OF THEM W/EN-SUITE BATHS), A PRIVATE DEN & OVER 4,100 SQFT of living space? Run, don't walk to this one-of-kind, two story home that was designed for entertaining. The first floor boasts a formal living room w/wet bar, formal dining room, home office plus a LARGE kitchen & spacious family room w/fireplace. The living room, family room & two guest rooms open to the balcony area that overlooks the pool. True chef's kitchen offers an abundance of cabinet & counter space w/a center island & prep area, stainless steel appliances (w/two dishwashers), plus an oversized walk-in pantry. The adjacent breakfast nook offers direct access to the balcony w/views of the pool & canal beyond. Three bedrooms are found on the main floor - each w/a large, walk-in closet & private en-suite bath. The master bedroom, laundry room & 5th bedroom are located on the second floor. The master suite features awesome views of Charlotte Harbor, a bump-out seating area & two unexpectedly large walk-in closets. The master bath has dual sinks atop a floating vanity w/stone counter plus a jetted garden tub & separate walk-in closet. The private WC has two linen closets. There is no shortage of storage space here! The 5th bedroom has (of course) an en-suite bath PLUS a balcony overlooking the canal view behind the home. The two-story pool cage encompasses the ground floor level area plus the balcony off the main floor. From the ground level, you'll enjoy the in-ground pool that is surrounded by a brick paver deck plus a summer kitchen, half bath & ample covered space that is perfect for a ping pong or foosball table, dedicated workshop area. The space has been used to host large parties w/catered food & tables filling the space w/laughter & conversation. Picture hosting memorable family gatherings here! An oversized, composite dock is located just steps from the back door. Keep your boat in your backyard & start enjoying some of the best fishing & boating in SW Florida immediately! You could swim to open water from the dock! Best of both worlds w/harbor views available from the front of the home & protected canal/dock for your boat at the back of the home. Other amenities include two A/C systems, hurricane protection, large coat/shoe closet at the foyer & an oversized two-car garage w/split doors. For the gardening enthusiasts, this house has an abundance of Mango, Fig, Chikoo, Lychee, Sugar Apple trees and more! Make an appointment today, you won't be disappointed.

Listing Tools

Property Details of 250 George Road

Property Details

Interior Features

Exterior Features

Utilities and Appliances

Community

Other Details

Map Location

Listings courtesy of StellarMLS as distributed by MLS GRID. Based on information submitted to the MLS GRID as of January 17, 2026 8:05 AM EST. All data is obtained from various sources and may not have been verified by broker or MLS GRID. Supplied Open House Information is subject to change without notice. All information should be independently reviewed and verified for accuracy. Properties may or may not be listed by the office/agent presenting the information. IDX information is provided exclusively for consumers’ personal noncommercial use and may not be used for any purpose other than to identify prospective properties consumers may be interested in purchasing. The data is deemed reliable but is not guaranteed by MLS GRID. The use of the MLS GRID Data may be subject to an end user license agreement.

Hi there! How can we help you?

Contact us using the form below or give us a call.

Send Us A Message:

I agree to receive marketing and customer service calls and text messages from TMG TERRA MIA GLOBAL REALTY. To opt out, you can reply 'stop' at any time or click the unsubscribe link in the emails. Consent is not a condition of purchase. Msg/data rates may apply. Msg frequency varies. Privacy Policy.

Do not fill in this field:

This site is protected by reCAPTCHA and the Google Privacy Policy and Terms of Service apply.

Hi there! How can we help you?

Contact us using the form below or give us a call.

Send Us A Message:

Do not fill in this field:

This site is protected by reCAPTCHA and the Google Privacy Policy and Terms of Service apply.

Hi there! How can we help you?

Contact us using the form below or give us a call.

Send Us A Message:

Do not fill in this field:

This site is protected by reCAPTCHA and the Google Privacy Policy and Terms of Service apply.

Do not fill in this field:

This site is protected by reCAPTCHA and the Google Privacy Policy and Terms of Service apply.

Do not fill in this field:

This site is protected by reCAPTCHA and the Google Privacy Policy and Terms of Service apply.

Do not fill in this field:

This site is protected by reCAPTCHA and the Google Privacy Policy and Terms of Service apply.

$

Do not fill in this field:

This site is protected by reCAPTCHA and the Google Privacy Policy and Terms of Service apply.