Listed by Tammy Cline of COLDWELL BANKER SUNSTAR REALTY (941-423-2521)
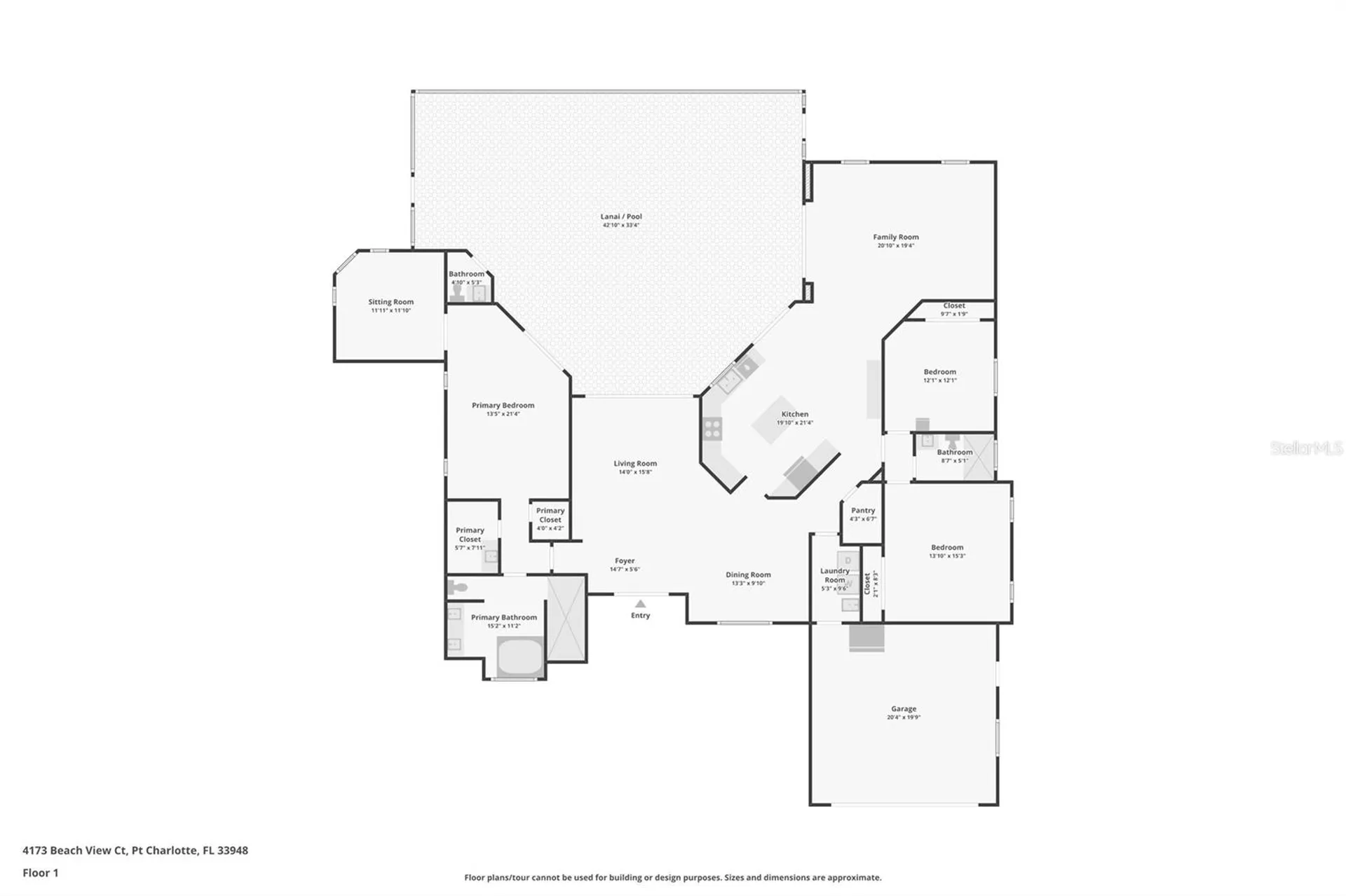
LOCATION! This exquisite WATERFRONT residence is situated at the end of a cul-de-sac on a TIP LOT nearly 1/2 ACRE in size and offers 207 feet of seawall waterfront, nearly 4 times the waterfront exposure of any home on an interior lot! Located on WIDE intersecting canals, it provides no bridges, no locks, direct deep water SAILBOAT ACCESS to Charlotte Harbor. The property is directly across from unspoiled mangroves, a preserved area where there is be no future building allowed, so privacy is preserved. No HOA or CDD fees! The home offers panoramic and sunset views of the Harborview waterway. Water and electric lines have been run to the seawall, if you are a boater and choose to add a dock. This home is equipped with a plethora of custom design elements by J&J CUSTOM HOMES such as tray ceilings and lighted plant shelves. You may choose to do some interior upgrades: you can change the DECOR, but you CANNOT CHANGE THE LOCATION. The home has been diligently and lovingly maintained by the original owner with updates and upgrades including : HOUSE REPIPED IN 2016, NEW HVAC IN 2020, HURRICANE RATED WINDOWS AND A TRANSFERRABLE FLOOD INSURANCE POLICY THAT IS ONLY $2100.00 YEARLY!! NEW ROOF LATE 2016, including 25 sheets of new plywood. Designed with both elegance and comfort in mind, the home features a separate living room and dining room for more formal events as well as an open kitchen and family room layout, ideal for relaxed coastal living. Stainless steel kitchen appliances are less that 4 years old. The large primary bedroom features an attached PRIMARY SITTING ROOM, a DRESSING ROOM with built-in vanity and sink, and a luxurious bathroom with separate tub and oversized walk in shower. The guest bedrooms are amply sized and can be easily closed off with the pocket door off the kitchen TO CREATE AN IN-LAW OR GUEST SUITE. A pool with waterfall overlooking the water, thoughtfully placed pool bath, and covered porch provide the perfect backdrop for year-round enjoyment. Mature tropical landscaping surrounds the home, complementing the concrete curbing, feature waterfall pond and beautifully patterned, pressed concrete driveway. Private well and complete landscape irrigation. This distinguished property presents an exceptional opportunity for refined waterfront living in a truly unique and serene setting.

Listing Tools

Property Details of 4173 Beach View Court

Property Details

Interior Features

Exterior Features

Utilities and Appliances

Community

Other Details

Map Location

Listings courtesy of StellarMLS as distributed by MLS GRID. Based on information submitted to the MLS GRID as of January 13, 2026 8:08 PM EST. All data is obtained from various sources and may not have been verified by broker or MLS GRID. Supplied Open House Information is subject to change without notice. All information should be independently reviewed and verified for accuracy. Properties may or may not be listed by the office/agent presenting the information. IDX information is provided exclusively for consumers’ personal noncommercial use and may not be used for any purpose other than to identify prospective properties consumers may be interested in purchasing. The data is deemed reliable but is not guaranteed by MLS GRID. The use of the MLS GRID Data may be subject to an end user license agreement.

Hi there! How can we help you?

Contact us using the form below or give us a call.

Send Us A Message:

I agree to receive marketing and customer service calls and text messages from TMG TERRA MIA GLOBAL REALTY. To opt out, you can reply 'stop' at any time or click the unsubscribe link in the emails. Consent is not a condition of purchase. Msg/data rates may apply. Msg frequency varies. Privacy Policy.

Do not fill in this field:

This site is protected by reCAPTCHA and the Google Privacy Policy and Terms of Service apply.

Hi there! How can we help you?

Contact us using the form below or give us a call.

Send Us A Message:

Do not fill in this field:

This site is protected by reCAPTCHA and the Google Privacy Policy and Terms of Service apply.

Hi there! How can we help you?

Contact us using the form below or give us a call.

Send Us A Message:

Do not fill in this field:

This site is protected by reCAPTCHA and the Google Privacy Policy and Terms of Service apply.

Do not fill in this field:

This site is protected by reCAPTCHA and the Google Privacy Policy and Terms of Service apply.

Do not fill in this field:

This site is protected by reCAPTCHA and the Google Privacy Policy and Terms of Service apply.

Do not fill in this field:

This site is protected by reCAPTCHA and the Google Privacy Policy and Terms of Service apply.

$

Do not fill in this field:

This site is protected by reCAPTCHA and the Google Privacy Policy and Terms of Service apply.